Magnif.bureau à la localisation topissime ! Construction Q-ZEN
€ 225.000
Nouveau
1300 Wavre(ref. 2717)
94.9 m²
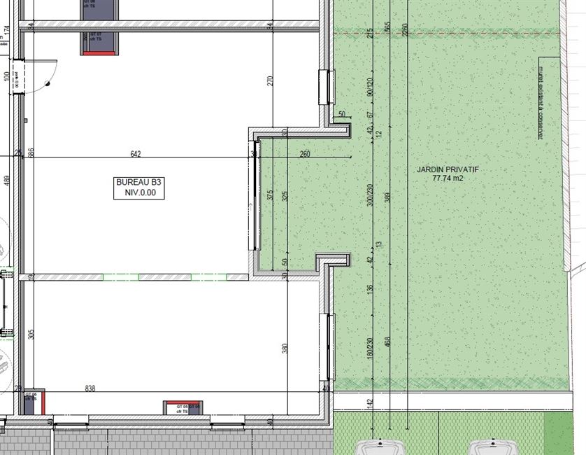
77.74 m²
1
40% VENDUS !!! WAVRE, au coeur du Brabant Wallon, une topissime réalisation par un constructeur de renom va être érigée à deux pas du centre de Wavre et de ses multiples facilités : localisation recherchée proche de la E411, à 10' en bus de Louvain-la-Neuve, des commerces (Place Bosch 10' à pied), arrêt bus à 200M, pharmacie à 700M, des écoles, des zonings, GSK, etc... GARE à Wavre (Départ Conforto bus vers BXL !) . vous situez vraiment à deux pas de tout tout tout ! Ce magnifique immeuble de standing avec ascenseur, aux belles lignes et à l'architecture très équilibrée, propose 4 bureaux et 6 appartements. Réalisation basse énergie (Q-ZEN), isolation thermique et acoustique renforcées. Chouette petite co-propriété en perspective. Le sous-sol (porte électrique) comprend 12 parkings intérieurs, 10 caves et un espace vélos. 13 parkings extérieurs. Cette annonce concerne le bureau 3 (94,90M² bruts) VENDU CASCO EN GROS OEUVRE FERME comprenant un magnifique espace ouvert qui pourra être aménagé par vos soins selon vos besoins et les besoins de votre profession, et un super chouette jardin pour vous détendre vous et vos équipes ! Compteurs individuels, châssis ALU DV (gris foncé/noir wouah !).Vente sous loi Breyne.Obligation acquérir 2 parkings extérieurs et un intérieur.Livraison à partir de septembre 2025. Vente sous régime TVA (construction)/Dts enregistrement (Terrain). Je trépigne de vous présenter ce magnifique projet dont la construction avance déjà très vite ! Présentation également en nos bureaux de Wavre, avec grand plaisir. Descriptif complet : www.valdelimmo.be.
L'immeuble comprendra :
1. Rez-de-chaussée : 4 bureaux dont un déjà vendu !!!
2. 1er étage : 4 appartements 2 chambres dont 3 déjà vendus !!!
3. 2ème étage : 2 appartements 3 chambres - ou 1 appartement 3 chambres et 2 appartements 2 chambres
4. Sous-sol : 12 emplacements de parking intérieur et 10 caves.
5. Extérieur : 13 emplacements de parkings extérieurs.
Vente sous loi Breyne.
Quote-part construction vendue sous régime TVA (21%), soit 156.200 € x 21% = 32.802 €
Quote-part terrain vendue sous droits d'enregistrement (12,5%), soit 68.800 € x 12,5% = 8.600 €
Frais supplémentaires à prévoir :
* Frais de raccordement : 5.950 € HTVA
* Frais de géomètre : 750 € HTVA
* Frais quotepart acte de base : 950 € HTVA
* Possibilité de raccordement à la citerne eau de pluie moyennant paiement d'un supplément
DESCRIPTIF BUREAU B2 - REZ-DE-CHAUSSEE DE LA CO-PROPRIETE - 86 millièmes des parties communes générales
VENTE CASCO - GROS OEUVRE FERME
* Espace bureau 1 : 49,71 m²
* Espace bureau 2 : 31.84 m²
* Jardin privatif : 77,74 m²
CONSTRUCTION-EQUIPEMENTS
* Immeuble de construction traditionnelle livrable à partir de septembre 2025.
* Toiture en tuiles terre-cuite.
* Isolation de la toiture : laine minérale ou Icynène projeté de minimum 20 cm.
* Façades en brique : Isolant PU 12 cm.
* Châssis en aluminium double vitrage (k=1.0) de coloris gris foncé/noir. Les châssis seront composés de parties fixes et de parties ouvrantes oscillo-battantes.
* Isolation acoustique : est assurée au niveau des sols et au niveau des murs. Isolant phonique inséré au sein du double-mur qui délimite chaque unité.
Entre chaque étage, les dalles de sol béton seront couvertes par un isolant acoustique, projeté sous la chape de finition. Cet isolant acoustique assure également l'isolation thermique entre les unités.
* Possibilité de se raccorder à la citerne d'eau de pluie pour les chasses des toilettes (raccordement facultatif).
* Q-ZEN est le nouveau standard pour les bâtiments neufs : depuis le 1er janvier 2021, tous les bâtiments neufs doivent être à consommation d'énergie quasi nulle.
VASTE SOUS-SOL ACCESSIBLE PAR UNE PORTE DE GARAGE SECTIONNELLE MOTORISEE : 2 parkings extérieurs + 1 parking intérieur + cave au choix, obligatoires.
Caves entre 4.000 € et 9.000 €
Parkings intérieurs : 25.000 € ou 30.000 €
Parkings extérieurs : 15.000 €
Parkings extérieurs numéros 16 et 17 : 17.500€
(Prix mentionnés hors frais : 21% (ou 6%) sur la quote-part construction et 12,5% (ou 3%) sur la quote-part terrain)
Informations générales
EnvironnementUrbain
Nombre d'étages2
Nombre de places de parking1
Nombre de places de parking externes2
Surface habitable94.9 m²
Surface du terrain77.74 m²
Performance énergétique
Certificat d'électricitéPas encore demandé(e)
Financier
Prix€ 225.000
Frais divers€ 8.107
Droits d'enregistrement (12.5%)€ 8.600
Coûts de construction€ 156.200
TVA€ 32.802
Confort
ChauffageC.C. au gaz
VitrageDouble
Châssisalu
Construction
ÉtatNouvelle construction
Matériau de toitureTuiles
Informations urbanistiques
Droit de préemptionPas encore demandé(e)
PermisPas encore demandé(e)
CitationPas encore demandé(e)
Permis de lotissementPas encore demandé(e)
AffectationPas encore demandée
Agencement
Bureau49.7 m²
Bureau31.8 m²

Valérie MICHAUXvalerie@valdelimmo.be
.jpeg?format=webp&width=1920&height=auto)









