Nature quiétude pour ce lotissement de 9 terrains !
€ 195 000
Nouveau
1490 Court-Saint-Etienne(ref. 2390)
703 m²
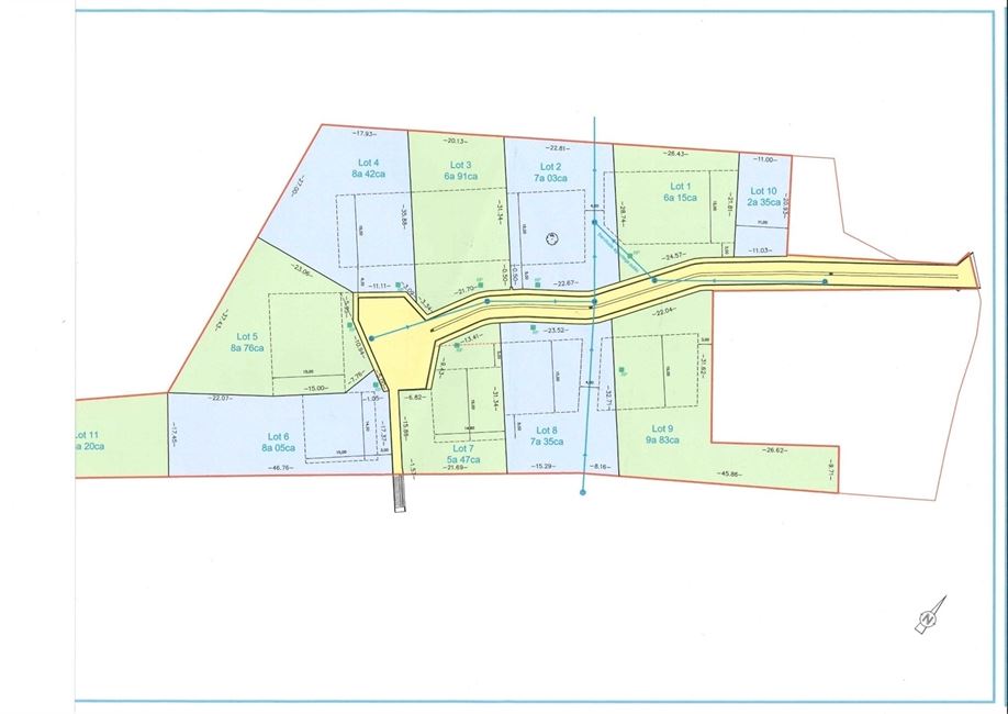
DEJA 5 TERRAINS VENDUS ! Il reste 4 beaux terrains. COURT-SAINT-ETIENNE, en bordure du RAVEL, en pleine nature, en zone d'habitat et d'espaces verts, mais à 15' à pied du centre de Court, à 1500Mètres de la GARE par le RAVeL, à 250Mètres d'un arrêt de bus ! Vous serez subjugués par l'endroit qui est un havre de nature ! La parcelle de terrain pourra accueillir la construction de 9 villas (habitation à caractère résidentiel permanent) et constituera donc un chouette quartier où les enfants pourront jouer et aller en vélo en toute sécurité. Les terrains du lotissement sont répartis autour d'une petite voirie déjà construite. Les terrains non bâtis, et libres de constructeur, sont déjà équipés en eau/gaz/électricité/téléphone/égouts avec chambre de visite égout sur chaque parcelle. Frais de bornage et de mesurage et frais de raccordement à charge de l'acquéreur. La construction de la villa pourra aussi comprendre la construction d'un volume secondaire de maximum 45M², les professions libérales sont acceptées. Le lot numéro 2 propose une superficie de 7a03ca avec une largeur de façade de +/-16,22Mètres, largeur arrière +/- 22,81Mètres, profondeur droite +/- 29,73Mètres, profondeur gauche +/- 32,83Mètres. Opportunité unique de réaliser votre plus beau projet proche des axes qui vous sont chers, tout en étant en pleine nature. On visite ? Descriptif complet uniquement sur www.valdelimmo.be. Dossier complet à votre disposition.
Splendide opportunité de vous installer en Brabant Wallon, en pleine nature tout en étant proche de tous les axes, du centre de Court-Saint-Etienne offrant plein de commerces, banques, pharmacie, écoles réputées et surtout sa GARE devenue incontournable !
Cette annonce concerne le LOT 2 du lotissement : 7a03ca NORD-OUEST
Vous serez conquis par l'endroit, longeant le RAVeL avec un accès direct vers celui-ci.
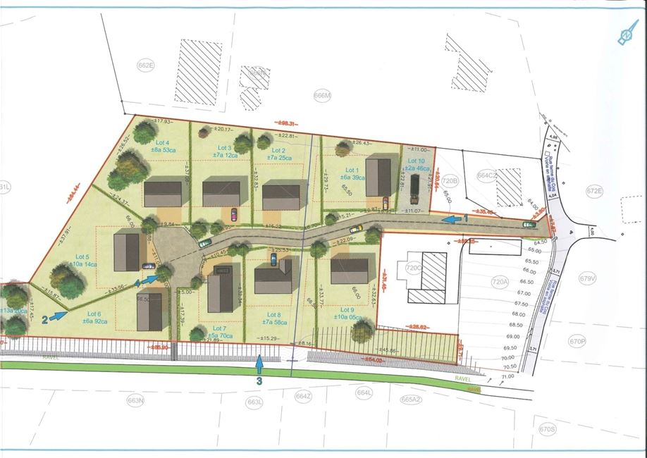
Le projet s’inscrit dans la continuité de la zone d’habitat de la rue du Pont de Pierre et en marque la limite Ouest. Au-delà, une vaste zone verte (plan de secteur) s’étend, le long du lit de la rivière, jusqu’à la zone d’activités économiques située face au terrain de football de Court-Saint-Etienne;
Le terrain est situé à +/- 15 minutes à pied (1500 mètres) de toutes les activités du centre de la Commune (commerces, services, administrations, loisirs et une partie des établissements scolaires) et de la gare SNCB ; § Le terrain, bien que situé en zone semi-rurale, est connecté à une ligne de transports en commun reliant Nivelles à Ottignies (arrêts bus TeC à moins de 250 mètres) ;
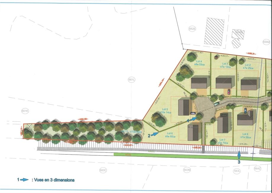
Présence du RAVeL L141 avec une proposition de connexion directe pour les piétons.
La présence du RAVeL est un atout pour l’utilisation des modes doux, la voiture devient accessoire.
Risque faible d’inondation par débordement. Plusieurs travaux récents sur le cours d’eau atténuent sensiblement le risque
Les constructions seront implantées en respectant le relief naturel du terrain. Le niveau des rez-de-chaussée sera obligatoirement situé 15 cm au-dessus de la cote de la zone de débordement reprise sur la carte des aléas d’inondation. Une attention toute particulière sera portée au caractère durable des constructions à venir
Le projet d’urbanisation propose une affectation principale à l’habitation à caractère résidentiel permanent de type unifamilial qui s’inscrit dans la continuité du bâti existant. Les professions libérales ou assimilées seront autorisées pour autant que celles-ci restent secondaires à la fonction principale et ne génèrent pas de troubles incompatibles avec la fonction résidentielle. La surface au sol occupée par l’activité secondaire ne peut dépasser 30% de la surface totale destinée à l’habitation
Architecture. Les options architecturales s’inscriront également dans les principes du développement durable en optimisant la compacité volumétrique, en exploitant les apports naturels tels que l’ensoleillement, la lumière, le sol, la végétation… au profit de la qualité d’habiter et d’une gestion économe des ressources énergétiques tout en respectant les options d’aménagement en matière d’urbanisme
Du volume annexe : Un seul volume annexe est autorisé par lot d’une superficie n’excédant pas 45m². Le volume annexe peut être implanté sur le front de bâtisse en cas de recul du volume principal. Il répond aux prescriptions du volume principal en termes de toiture et de matériaux. Du relief du terrain naturel : Le relief du sol ne sera pas modifié en dehors des abords directs des constructions. Les déblais issus des terrassements seront obligatoirement évacués du lotissement. Le niveau du rez-de-chaussée du volume principal est obligatoirement 15 cm audessus du niveau maximum de la zone inondable (aléa faible). Ces prescriptions s’appliquent également pour un volume annexe implanté sur le front de bâtisse. Les garages, s’ils sont envisagés, seront aménagés au niveau du terrain naturel, qu’ils soient prévus dans le volume principal ou dans le volume annexe. Leur aménagement en sous-sol est interdit
Volumétrie. Du volume principal : Le volume principal sera de type R + 1 +T ; La hauteur sous gouttière est comprise entre 5 mètres et 6 mètres. La toiture ne comprend qu’un seul niveau habitable. La profondeur du volume principal, mesurée perpendiculairement à la façade à rue n'excède pas 12 mètres. Du (des) volume(s) secondaire(s) : La hauteur du faîte de toit et des gouttières ou corniches du volume secondaire est inférieure à la hauteur du faîte et des gouttières ou corniches du volume principal. La différence de hauteur du faîte du volume secondaire par rapport à la hauteur du volume principal sera de minimum 20%. Un petit élément de transition, de faible profondeur (maximum 2,50 mètres) et dont la hauteur et gouttières et faîte de toit est inférieur au volume secondaire, est admis et assimilé au volume secondaire en termes de matériaux. Une exception en termes de couverture est décrite au chapitre « Toitures ». Du volume annexe : Le volume annexe répond aux prescriptions du volume secondaire en termes de toiture et de matériaux
Le gabarit du volume annexe est du type R + T ; La hauteur sous gouttière est comprise entre 3 mètres et 4 mètres
Aspects architecturaux. Du volume principal : La composition de façades de tous les volumes respecte le principe de verticalité. L'effet de verticalité est obtenu par juxtaposition de baies et/ou par division verticale des baies notamment par des colonnes, des trumeaux, des montants de menuiserie. Les élévations extérieures sont réalisées en maçonnerie de briques de parement rugueuses éventuellement peintes. Eu égard à l’environnement boisé, l’enduit n’est pas autorisé. Les teintes admises sont : • le rouge moyen ; • le brun moyen ; • le blanc nuancé de jaune ; • le blanc nuancé de gris. Maximum deux teintes de matériaux de parement pourront être utilisées pour l’ensemble bâti d’un même lot (le volume principal et le(s) volume(s) secondaires, annexe et de transition). Des éléments de parement accessoires sont admis en proportion limitée à 25% de la surface de l’élévation concernée. Ces éléments, appliqués ponctuellement (seuils, encadrement, soubassement, …), sont : • la pierre naturelle ; • le béton architectonique ; • le bois traité teinte naturelle ; • un élément métallique de teinte gris anthracite, teinté dans la masse (zinc prépatiné…) Les matériaux vernissés ou à base de fibrociment sont proscrits. La menuiserie extérieure aura le même aspect (tonalité, matériaux et exécution) pour l’ensemble bâti d’un même lot. Les menuiseries seront en bois naturel traité, en bois ou autres matériaux (PVC, aluminium, …) teintés. Du (des) volume(s) secondaire(s) : Il répond aux prescriptions du volume principal en termes de toiture et de matériaux
Du volume annexe : Il répond aux prescriptions du volume secondaire en termes de toiture et de matériaux. Des murs de soutènement ou séparatifs : Les matériaux de parement des murs de soutènement ou séparatifs sont similaires aux matériaux mis en œuvre pour l’ensemble bâti d’un même lot
Toitures. Les toitures de tous les volumes, hormis le volume de transition, seront à deux versants de même longueur et de même pente, comprise entre 40 et 45 degrés. Le faîte est toujours orienté selon la longueur du volume (la dimension la plus grande). Les débordements en façade n’excèdent pas 30cm et sont nuls sur les pignons. Afin de préserver la volumétrie principale des constructions, aucun élément saillant ou en retrait n’est autorisé. Cette interdiction concerne notamment les souches de cheminée, à implanter à proximité du faîte et en nombre limité, et les terrasses encastrées dans le plan de la toiture. Pour l’éclairement des combles, les baies intégrées dans les versants de la toiture sont autorisées sous la forme de : • Châssis à tabatières intégrés dans le plan de la toiture; • Lucarne passante élevée à l’aplomb de l’élévation et à toiture à deux versants. Une seule forme de baies de toiture est autorisée par versant
Des matériaux : A l’exception de ce qui est dit à propos de l’énergie solaire, les matériaux de couverture autorisés sont : • l'ardoise naturelle ou artificielle ; • une tuile de teinte gris foncé ou brune non vernissée; • un revêtement métallique de teinte gris anthracite, teinté dans la masse (zinc pré-patiné…)
le vitrage pour les vérandas. Il ne peut être fait usage que d’un seul matériau pour l’ensemble des toitures des volumes principal, secondaires et annexes d’un même lot. Un seul volume « véranda », utilisé comme volume secondaire, est admis ; La toiture sera constituée d’un vitrage transparent et plan
Du petit élément de transition : La couverture du petit élément de transition autorisé pour articuler un volume secondaire au volume principal est réalisée au moyen du même matériau que l’ensemble des toitures. Pour autant que la longueur de la façade de cet élément de transition n’excède pas 1,50 mètre, la toiture plate, dont l’étanchéité sera assurée au moyen d’un revêtement asphaltique ou synthétique de teinte foncée, est autorisée. En cas de couverture par une toiture à deux versants de même longueur, la pente est comprise entre 30 et 40 degrés. Gestion du stationnement. Chaque lot compte au minimum 2 emplacement de parking à l’air libre. Cet emplacement est aménagé en zone de recul et/ou dans la partie de la zone capable de bâtisse située à l’avant de la façade du volume principal. Si une partie des constructions est affectée à une activité professionnelle autorisée, le nombre d’emplacements de parking est augmenté d’une unité par 30m² de surface professionnelle. Les emplacements réservés à l’activité professionnelle sont aménagés exclusivement en zone de recul. Aucun véhicule, quel qu’il soit, ne peut stationner en zone de cours et jardin. Infrastructures et équipements techniques. De la collecte des eaux usées : Les lots sont équipés d’un raccordement au réseau public. Une chambre de visite et de disconnexion est en attente sur l’alignement [charge du lotisseur]. Le réseau privatif d’eaux usées y est obligatoirement connecté, conformément aux impositions du code de l’eau, dans sa version la plus récente au moment de la demande, et au règlement communal. De la gestion de l’eau de pluie : Une citerne à eau de pluie sera installée sur chaque lot. Cette citerne aura une capacité minimale de 5.000 litres pour les constructions dont les toitures présentent une superficie inférieure ou égale à 100m2 et une capacité minimale de 10.000 litres pour les constructions dont les toitures présentent une superficie supérieure à 100m2. La citerne d’eau de pluie sera obligatoirement connectée à un réseau de distribution équipant l’habitation ou un volume annexe, en conformité avec le code de l’eau. En cas de modification du règlement communal, les demandeurs de permis d’urbanisme devront se conformer aux règles en vigueur au moment du dépôt de leur demande. De manière générale, les revêtements extérieurs seront perméables et les parties minéralisées seront réduites aux surfaces strictement nécessaires au bon aménagement des lieux (manœuvres des véhicules, confort des accès piétons, terrasses, …)
Informations générales
EnvironnementVert
Surface du terrain703 m²
Largeur de façade16.22 m
Largeur du terrain16.22 m
Performance énergétique
Certificat d'électricitéPas encore demandé(e)
Financier
Prix€ 195 000
Confort
DestinationHabitation, Profession libérale + logement
Informations urbanistiques
Droit de préemptionPas encore demandé(e)
PermisPas encore demandé(e)
CitationPas encore demandé(e)
Permis de lotissementPas encore demandé(e)
AffectationPas encore demandée

Valérie MICHAUXvalerie@valdelimmo.be
.jpeg?format=webp&width=1920&height=auto)





























