MSG Grand appartement
Au coeur de Mont-Saint-Guibert, commune hyper recherchée et attrayante, en plein essor !
Il y a tout à Mont-Saint-Guibert : la GARE, pharmacies, boulangerie, superette, fleuriste, épicerie bio, chocolatrie, un chouette petit marché le vendredi après-midi, un café citoyen, une chouette petite brasserie, un magasin de trésors de folie, tout cela au centre du village.
Deux super écoles réputées à deux pas.
Le projet consiste en la construction de deux appartements duplex au dessus des garages existants.
Le permis d'urbanisme a été obtenu auprès de la commune en date du 07 juillet 2021.
Il vous est bien entendu loisible d'introduire un autre permis d'urbanisme pour un autre projet.
Le dossier comprend :
- plans "finaux"
- déclaration initiale PEB
- étude de faisabilité PEB
- Rapport PEB: EW 42 - Es 72 K 31
- Résumé PEB
- Permis urbanisme
- étude de stabilité
- étude de sols
Les surfaces brutes sont réparties comme suit :
- Rez : 11,11m x 6,84m= 76m2
- 1er étage : 11,11m x 6,84m= 76m2
- 2ème étage : 11,11m x 6,84m= 76m2
- 3ème étage : 7,27m x 6,84m= 50m2
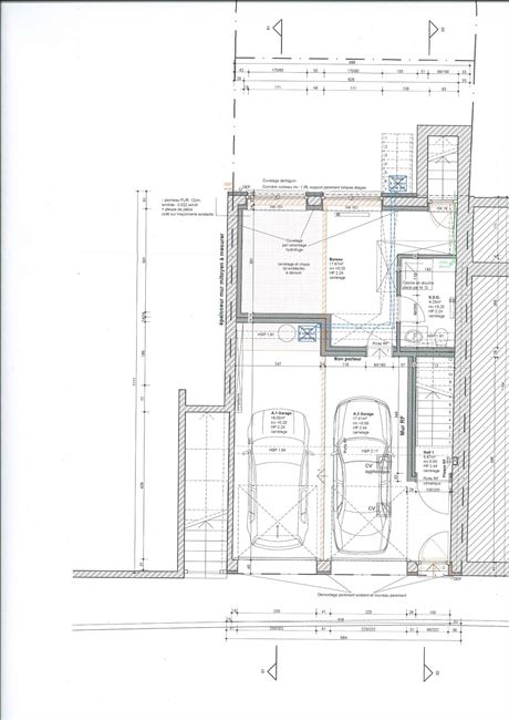
1. Rez-de-chaussée :
* 2 garages existants
DUPLEX 1 : +/-90M² bruts
* Chambre ou bureau profession libérale avec salle de douches
Interdiction de créer un logement 3 dans cet espace
2. 1er Etage
* Hall
* Living avec accès belle terrasse SUD-EST
* Couloir de nuit
* Toilette visiteurs
* Salle de douches
* Chambre 2
DUPLEX 2 : +/-126m² bruts
3. Deuxième Etage
* Vaste living avec accès balcon SUD-EST
* Hall de nuit
* Toilette visiteurs
* Salle de douches
* Chambre 1
4. Sous combles
* Hall de nuit
* Chambre 2
* Chambre 3
* Salle de douches 2
CONSTRUCTION/EQUIPEMENTS
La construction prévoit des matériaux de qualité
Le chauffage prévu était des pompes à chaleur air-eau, les unités extérieures devront être placées en façade arrière
Une installation photovoltaïque de 8 panneaux a été recommandée
Compteurs d'électricité : 2 compteurs de 40 Ampères ont déjà été placés
Compteurs d'eau : 2 compteurs ont déjà été placés
Proximus ADSL ET V00 Câble coaxial sont tirés pour laisser le choix plus tard
Pas d'ascenseur
Briques de façade collées sans joint étaient prévues
Informations générales
Performance énergétique
Financier
Construction
Informations urbanistiques
Agencement

.jpeg?format=webp&width=1920&height=auto)








